
Sep 22, 2012 I wouldn't worry about it, it's the circle of life. If they're copyrighted and you're ripping Toyota off for it's manuals, i'm sure they'll get even and rip you off good next time you go to a dealer. View and Download Toyota HILUX electrical wiring diagram online. HILUX Automobile pdf manual download. Toyota HILUX Electrical Wiring Diagram. Also See for HILUX. Manual - 138 pages Owner's manual. Electrical Wiring Routing. Position of Parts in Engine Compartment: LHD: 3RZ-FE, 2RZ-FE 28.
Wiring Diagrams
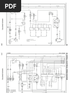
This is not an automated service. Each Diagram that is requested has to be hand selected and sent. As this is a free service it receives an overwhelming amount of requests and may take up to a week or longer for a response. Just submit a request for the wiring diagram you want (ex. 'Need wiring diagram for charging system')We will provide you with the basic free wiring diagrams in an email that can be viewed, saved or printed for future use. Automotive basic wiring diagrams are available free for domestic and Asian vehicles. Some European wiring diagrams are available also.
Once you get your Free Wiring Diagrams, then what do you do with it. You still need to fix the problem that led you here in the first place right? There are many different ways to look at fixing an electrical problem but we will stick with the easiest way. First , find the problem area on the wiring diagram. Highlight the individual circuit using a different color for positive and negative. Trace the wiring till you can see where a short may have taken place. Eliminate each portion of the diagram in sections until you find the short in the wiring. This makes knowing where to check connections easy with an automotive wiring diagram.
| 1996 Toyota Corolla Wiring Diagram |